

Commercial Design Office
Brisbane, Q
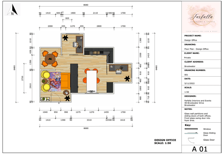
The brief for this Brisbane office space was to create various areas including an informal meeting area, a formal meeting area, a workspace for the designer and assistant, a design room, and a kitchenette. To fulfill this brief, we developed a detailed plan with floor layouts, elevations, 3D models, and sample boards which were presented to the client. The design focused on providing both the designer and assistant with offices equipped with windows for natural light. Additionally, the offices feature automatic glass doors that can be opened or closed as needed, ensuring privacy when required. This design not only meets the functional requirements of the space but also creates a pleasant and efficient working environment.
The foyer area serves as an informal meeting space and is equipped with an external video intercom, allowing clients to be screened before being granted access. Additionally, the entrance is visible from the assistant's office, ensuring a secure and efficient reception process. Moving towards the rear of the foyer, there is a formal meeting area that leads to the design area. This design area features various sized storage drawers, cubicles, and cupboards, providing ample space for organization. Additionally, a central custom-built, high-design table with adjustable stools serves as the focal point of the space. Both offices open up into this central design area, promoting collaboration and easy communication between team members.
The kitchenette is strategically positioned in this open plan area, allowing for convenient access from all areas. It is equipped with a full-size fridge, a coffee machine, and a microwave, effectively meeting the needs of the staff and enabling them to cater to clients. This not only eliminates the need for takeaway options but also contributes to the sustainable aspects of the design. The designer's office is situated at the far end of this area, ensuring privacy and a focused work environment.











